征 集 文 件:成都太平洋保险金融大厦负二层食堂排污管道改造工程 返回列表页>>


征 集 文 件

 

成都太平洋保险金融大厦
负二层食堂排污管道改造工程

 

 

 

 

 

征集人:中国太平洋保险(集团)股份有限公司

2023年8月

目  录

第一章 征集公告 3
第二章 应征人须知 5
第三章 合同格式 19
第四章 项目需求书 32
第五章 评审办法 37
第六章 应征文件格式 43
第七章 工程量清单 64
第八章 图纸 65


第一章 征集公告
中国太平洋保险集团(股份)有限公司(以下简称“征集人”)就成都太平洋保险金融大厦负二层食堂排污管道改造工程采用公开竞价的方式进行征集,征集人将择优选定中选人,请有意向的潜在应征人前来应征。
一、项目概况
1、项目名称:成都太平洋保险金融大厦负二层食堂排污管道改造工程
2、项目类别:工程类
3、采购方式:公开竞价
4、采购预算(控制价):16万元(含增值税)
5、施工工期:  30 日历天(从签订合同之日起计算,至验收合格之日为止)。
6、工程质量:达到合格工程验收标准。
7、工程地点:成都市高新区天府三街199号太保金融大厦。
8、建设内容:主要内容包括太平洋保险金融大厦负二层食堂排污管道改造施工;中选单位必须按征集文件、工程量清单和现有图纸,以及施工规范等文件资料,结合现场实际情况进行承包。
注:应征人必须对本项目进行整体报价,不接受仅对其中某部分内容进行报价。
9、承包方式:包深化设计、包工、包料、包质量、包工期、包安全文明施工、包检验(报检)、包运输、包安装、包技术服务(含技术资料、图纸的提供)、包验收通过,直至项目验收合格交付使用及质保期承诺期满。
二、应征人资格要求
1、应征人须是具有独立承担民事责任能力的在中华人民共和国境内注册并合法存续的法人,应征时提交有效的企业法人营业执照(或事业法人登记证)副本复印件;
2、应征人必须具备与本项目相应的经营范围,具有履行合同的能力;
3、应征人须具备建筑工程总承包三级以上和有效的安全生产许可证;如是四川省外企业还需提供有效的跨省经营证书;
4、企业近五年(2018年7月1日至今)有相关类似业绩;
5、单位负责人为同一人或者存在直接控股、管理关系的不同应征人,不得参加同一合同项下的投标活动。
6、参加本项应征活动前三年内,应征人及其法定代表人经营活动没有重大违法记录(未被列入“信用中国”(www.creditchina.gov.cn)失信被执行人名单、重大税收违法案件当事人名单、政府采购严重违法失信行为记录名单)。(须提供网站截屏);
7、本项目不接受联合体投标。
三、征集文件的获取
1、时间:2023年 8月 21 日至2023年8 月 25日(提供期限自本公告发布之日起不少于5个工作日),每天9:00至11:00,13:00至16:00(北京时间,法定节假日除外)。
2、地点:成都市天府三街199号太保金融大厦C区9楼。
3、方式:由法定代表人或委托代理人携带以下资料前来领取征集文件:本人身份证原件、法定代表人身份证明书原件、法定代表人身份证复印件、授权委托书原件及委托代理人身份证复印件(如委托时提供)、营业执照副本复印件、企业资质证书复印件。复印件必须盖单位公章。
四、应征文件的递交
1、应征文件递交截止时间:2023年 8 月 29 日下午14时00分(北京时间)。
2、应征文件递交地点:成都市天府三街199号太保金融大厦C区9楼。
注:应征人必须在应征文件递交截止时间前,将应征文件密封送达应征文件递交地点。在应征文件递交截止时间后送达的应征文件为无效文件。同时,也可接受应征文件快递形式递交,但各应征人需自行保证在递交截止时间前送达征集人办公地点(成都市天府三街199号太保金融大厦C区9楼)。
五、公告期限
自本公告发布之日起5个工作日。
六、发布公告的媒介
中国太平洋保险(集团)股份有限公司官网(https://www.cpic.com.cn/aboutUs/gsdt/zxgg/index.shtml?ShouyeGgMore1 )。
七、联系方式
中国太平洋保险(集团)股份有限公司
地址:成都市天府三街199号太保金融大厦C区9楼
联系人:高杰
电子信箱:gaojie-038@cpic.com.cn

第二章 应征人须知
应征人必须认真阅读征集文件中所有的事项、格式、条款和征集人需求等。应征人没有按照征集文件要求提交全部资料,或者应征文件没有对征集文件在各方面都做出实质性响应是应征人的风险,并可能导致其应征文件无效或被拒绝。
应征人须知前附表

条款号条款名称编列内容
2.1.1征集人中国太平洋保险集团(股份)有限公司
2.1.2 项目名称 太平洋保险金融大厦负二层食堂排污管道改造工程
2.2 组织形式 公开竞价
2.5.1建设内容见征集公告
2.5.2施工工期 30 日历天(从签订合同之日起计算,至验收合格之日为止)
2.5.3工程质量 达到合格工程验收标准。
2.8.2 应征人要求时间:2023 年8月 25 日上午10时00分前。应征人不在规定期限内提出,征集人有权不予答复,或答复后应征截止时间由征集人确定是否顺延。
形式:书面提交。经法定代表人(或授权代理人)签字(或盖章)并加盖应征单位公章的书面形式原件递交,同时提供电子版本文本格式(word)。不按要求提交的疑问或澄清要求,征集人可不予受理 。
2.12 报价要求 本项目采购预算(控制价)为 16万元(含增值税)(人民币,下同),报价超过控制价的报价为无效报价。应征人严格按照工程量清单填报单价。
注:每一项目只允许有一个报价,任何有选择的报价将不予接受。应征人未填单价或合价的项目,视为该项费用已包括在其他有价款的单价或合价内,在项目实施后,征集人将不予以支付。
2.12.5 本工程增值税计税方法 一般计税法      
【备注:根据《关于全面推开营业税改征增值税试点的通知》(财税〔2016〕36号)、《关于建筑服务等营改增试点政策的通知》(财税〔2017〕58号)文件规定选择】
2.13.2应征人资格要求见征集公告
2.13.3★业绩要求 2018年7月1日至今(以合同签订时间为准)完成过相关类似项目业绩,需提供项目合同关键页复印件、高度证明文件复印件。
2.17 备选应征方案本项目不允许递交备选应征方案
2.18 点对点应答 对征集文件中加“★”标明的关键条文负偏离,将导致报价被否决。
2.19.3 签字与盖章要求应征文件正本由应征人逐页加盖应征人单位公章及加盖骑缝章,且在相应位置经法定代表人签字(或盖章)或其委托代理人本人签字。应征文件正本未经应征人逐页盖章或法定代表人签字(或盖章)或其委托代理人本人签字的,均作否决其应征文件处理。除以上规定外,副本可为正本加盖公章后的复印件,副本在封面加盖公章和加盖骑缝章。正副本内容如不一致,以正本为准。请按上述要求制作应征文件,否则其应征文件将被否决。
2.19.4应征文件数量要求投标文件一份正本、一份副本。递交时投标文件须装袋密封。
另要求提供:
电子文档一份(要求单独封装,内容为商务文件、技术文件正本签字并加盖单位公章后的PDF扫描件,内容应与应征人打印产生的纸质应征文件内容一致,如有不同,以纸质应征文件为准,电子文档应在应征文件递交截止时间之前提交)。
2.19.5装订要求所有应征文件需密封完好,并在密封口加盖单位公章。
2.19.6 封套上应载明的信息

项目名称:太平洋保险金融大厦负二层食堂排污管道改造工程

征集人名称:中国太平洋保险(集团)股份有限公司
应征人名称:                               
地址:                                  
       月         分之前不准启封

2.20.1 应征文件递交截止时间 2023年 8 月29 日下午 14 时00分
2.20.2应征文件的递交地点成都市天府三街199号太保金融大厦C区9楼(同时,可将应征文件通过邮寄的方式递交,但各应征人需保证在递交截止时间前送至上述地点。)
2.22开标

开标时间:2023年 8月 29日下午14 时00分同应征文件提交截止时间

开标地点:成都市天府三街199号太保金融大厦C区9楼
本项目为征集项目,不进行现场开标,只接收应征文件。

2.24评审方法 最低价中标
2.32.2分包 ☑不允许分包    □允许分包
2.34需要补充的其他内容本征集文件中的应征人指代本征集程序中的应征人,凡是本征集文件及合同其他组成文件中提及的“招标”“投标”“评标”“定标”“中标”等,均表示整个征集程序的部分环节,不属于法定招标投标中的程序、不适用《中华人民共和国招标投标法》及其他招标投标的相关规定。

本表是对应征人须知的具体补充和修改,如有矛盾,以本前附表为准。

应征人须知正文
1.1 适用范围
本征集文件仅适用于本项目所叙述的范围。
2.1 名词定义
2.1.1征集人名称:见应征人须知前附表。
2.1.2项目名称:见应征人须知前附表。
2.1.3“应征人”系指参加本次征集活动并向征集人提交《应征文件》的单位。
2.1.4“中选单位”系指本次公开竞价的中标单位。
2.1.5“评审小组”系指为本次征集组织的负责评审工作的项目性组织。征集方将根据采购服务的特点组建评审小组。评审小组对应征文件进行审查、评估和比较。
2.1.6“应征人代表”系指应征人负责参与本次应征征集的法人代表或法人代表授权人。
2.2 组织形式
组织形式见应征人须知前附表。
2.3 征集方式
本项目为公开竞价。
2.4 资格审查
2.4.1本项目为资格后审,审查方式采用合格制,不合格的应征人,由评审小组对其应征文件作无效处理。
2.4.2资格审查一般包括下列内容:
1)资格要求;
2)其他资质要求;
3)审查标准和方法。
2.5 项目概况
2.5.1建设内容:见征集公告。
2.5.2项目完成时间:见应征人须知前附表。
2.5.3工程质量:见征集公告及应征人须知前附表。
2.6 关于费用
不论结果如何,应征人自行承担所有参与准备和参与应征有关的费用。
2.7 征集文件的组成
第一章 征集公告
第二章 应征人须知
第三章 合同格式
第四章 项目需求书
第五章 评审办法
第六章 应征文件格式
第七章 工程量清单

第八章 图纸
2.8 征集文件的修改与答疑
2.8.1在应征文件提交截止时间前,无论出于何种原因,征集人有权修改《征集文件》。征集人以书面形式《征集文件澄清通知》通知所有征集文件收受人。《征集文件澄清通知》是《征集文件》的一部分,与《征集文件》具有同等法律效力。应征人在收到澄清后,应24小时内以书面形式确认收到该澄清。
2.8.2应征人需要征集人对《征集文件》的内容进行澄清或解释的,应在应征人须知前附表规定的时间前以书面形式要求征集人对征集文件予以答疑。征集文件的《征集文件答疑纪要》将以书面形式发给所有应征人,但不指明问题的来源。应征人应自收到《征集文件答疑纪要》之时起24小时内,以书面形式通知征集人,确认已收到该答疑纪要。
2.9 应征文件的编写
2.9.1应征人应按照征集文件的内容编写应征文件,并对征集文件做出实质性响应,凡属于非实质性响应或应征文件产生重大偏差均会造成应答无效。凡属于细微偏差的将会由评审委员会做出不利于应征人的评审。
2.9.2应征人必须对征集文件中的 “合同”、“项目需求书”中的内容进行点对点应答。一般写明“满足”或“不满足”,需要说明的特殊部分,另注明在附件中解释。应征人应认真阅读征集文件中所有的事项、格式、条款和技术规范等。应征人没有按照征集文件要求提交全部资料,或者没有对征集文件在各方面都做出实质性响应是应征人的风险,并可能导致其应答作应答无效处理。
2.9.3应征人提交的应征文件以及应征人与征集人就有关应答的所有往来函电均应使用中文。应征人提交的支持文件和印刷的文献可以使用另一种语言,但相应内容应译成中文,在解释应征文件时以中文译本为准。
2.10 应征文件的构成
见第六章应征文件格式的目录部分。
2.11 关于优惠条件
征集人不接受应征人的任何低于成本报价的不正当竞争方式。
2.12 投标报价
2.12.1应征人报价一览表报价内容不完整,未对报价一览表的每一细项进行详细、清晰的报价,漏报、错报、不报报价一览表/内容,未按《征集文件》报价要求和规定格式填写《报价一览表》,自行改变报价一览表格式及报价内容与报价方式,征集人有权将应征人报价和应答视为无效报价,并取消应征人本项目应选资格。
2.12.2应征人须严格按照本项目征集文件中项目需求书、报价格式、图纸、工程量清单等要求进行报价,报价格式中各项报表主要内容均必须填写,不得缺省或回避填写,否则评审小组有权进行核证,由此引起的后果由应征人承担。
2.12.3征集人设有最高限价的,应征人的报价不得超过最高限价,最高限价在应征人须知前附表中载明。
2.12.4若应征人报价如出现异常,征集人有权要应征人对报价金额及内容作出合理解释(提供相关书面证明材料,须加盖公章)。若征集人发现应征人报价低于其自身成本或正常(同类产品/服务)市场价格,且无法对报价金额及内容作出合理解释时,征集人评审小组会将视应征人报价为不正当竞争,有权宣布其报价无效,并取消应征人本项目的应征资格。
2.12.5 本工程增值税计税方法:详见应征人须知前附表。
2.13 证明应征人合格和资格的文件
2.13.1应征人应提交证明其有资格参加应征和中选后有能力履行合同的文件,并作为其应征文件的一部分。
2.13.2本项目应征人需满足的资格条件详见征集公告“应征人资格要求”。
2.13.3应征人提交的资格证明文件应符合征集文件要求。其中:
1)应征人已具备履行合同所需的财务、技术和生产能力;
2)应征人满足“应征人须知前附表”中列出的业绩要求。
2.14 关于划分标包
本项目不划分标包。
2.15 投标保证金
1)本项目不收取投标保证金。
2.16 应征文件的有效期
2.16.1应征文件的有效期为应征文件提交截止之日起90天。在应征文件递交截止日期以后,应征人不得要求撤回或修改其应征文件。应征文件有效期不满足要求的应征文件将被视为非实质性响应的应征。
2.16.2在原定应征文件有效期满之前,如果出现特殊情况,征集人可以书面形式向应征人提出延长应征文件有效期的要求。应征人须以书面形式同意,应征人拒绝这种要求应征文件将不被认可。同意延长应征文件有效期的应征人不允许修改他的应征文件。
2.17 备选应征方案
2.17.1除“应征人须知前附表”另有规定外,应征人不得提交备选应征方案。允许应征人提交备选应征方案的,只有中选单位所提交的备选应征方案方可予以考虑。评审小组认为中选单位的备选应征方案优于其按照征集文件要求编制的应征方案的,征集人可以接受该备选应征方案。
2.18 偏离
应征人须知前附表允许应征文件偏离征集文件某些要求的,偏离应当符合征集文件规定的偏离范围和幅度。
2.19 应征文件的封装及签署
2.19.1应征人应按规定格式提交完整的应征文件,并保证文件的真实性、有效性和完整性。
2.19.2应征文件正本与副本均应使用不能擦去的墨水打印,由应征人法定代表人或授权的代表人签署并盖单位章。
2.19.3应征文件应尽量避免涂改、行间插字或删除。如果出现上述情况,改动之处应加盖单位章或由应征人的法定代表人或其授权的代表人签字确认。签字或盖章的具体要求见应征人须知前附表。
2.19.4应征文件正本一份,副本份数见应征人须知前附表。正本和副本的封面上应清楚地标记“正本”或“副本”的字样。当副本和正本不一致时,以正本为准。
2.19.5应征文件应进行包装、加贴封条,并在封套的封口处加盖应征人单位公章。应征文件的正本与副本应分别装订成册,具体装订要求见应征人须知前附表规定。
2.19.6应征文件封套上应写明的内容见应征人须知前附表。
2.20 应征文件的提交
2.20.1应征文件须在规定时间提交,具体时间见应征人须知前附表。
2.20.2应征人递交应征文件的地点:见应征人须知前附表。
2.20.3除另有规定外,应征人所递交的应征文件不予退还。
2.20.4逾期送达的或者未送达指定地点的应征文件,征集人不予受理。电报、电话、传真形式的应征方式概不接受。
2.20.5未按征集文件要求进行密封的应征文件,征集人将拒收。
2.20.6征集人不接受未按征集文件报名的应征人递交的应征文件。
2.21 应征文件的修改和撤回
2.21.1应征人递交应征文件以后,在规定的应征文件递交截止时间之前,可以向征集人递交修改或撤回其应征文件的书面要求并进行修改或撤回。在应征文件递交截止日期以后,不能更改和撤回应征文件,否则做废标处理。
2.21.2应征人的修改或撤回书面要求和修改后的应征文件,应按本须知第2.19的规定编制、密封、标志和递交(在外层包封标明“修改”字样)。
2.22 开标
本项目为公开竞价征集,开标现场只接收应征文件,不进行现场开标。
2.22.1 不予接收条件
符合下列情况之一的应征文件,征集人拒绝受理,不得进入评审:
(1)应征文件逾期送达的或者未送达指定地点的;
(2)应征文件未按征集文件要求密封的;
2.23 评审小组
2.23.1征集方将根据采购服务的特点组建评审小组。评审小组对应征文件进行审查、评估和比较。
2.23.2评审期间,如有需要,评审小组可安排应征人派代表参加询标。
2.23.3整个评审工作将由评审小组负责。
2.24 评审方法
本项目采用最低价中标。
2.25 定标方式评审原则及方法
2.25.1评审过程将遵循“公平、公正、择优”的原则进行。
2.25.2评审严格按照征集文件的要求和条件进行。
2.25.3本次评审将采用综合评分法进行评审,评审小组将对每一份应征文件采用相同的程序和标准进行综合分析、比较,同时将围绕应征人的信誉资质、企业业绩、认证情况、项目组人员、服务方案、价格等方面进行评分,并最终确定按得分由高到低排序的第一名为中选候选单位。中选候选单位是其应征文件实质性地响应了征集文件要求的、并能圆满地履行合同的、对征集方最为有利的、综合情况最佳的应征人。
2.25.4评审小组对非实质性响应的应征文件按无效处理,不再进行下一步评审。对细微偏差的修正原则,应根据澄清、说明和补正的情况,按征集文件的规定做出最不利于应征人的量化。

2.26 中选通知及成交公告
征集人按照征集文件规定的定标方式确定排名第一的候选单位为中选单位,并将成交情况通知中选单位。
2.27 签订书面合同
2.27.1征集人应当在收到成交通知之日起30日内与中选单位签订书面合同,征集人与中选单位不再订立背离合同实质性内容的其他合同或协议。
2.27.2中选单位无正当理由不得拒绝与征集人签订合同。
2.28 重新征集
有下列情形之一的,征集人有权重新征集:
(1)应征截止时,应征人少于3个的;
(2)经评审小组评审后,所有应征文件被否决或者部分应征文件被否决后,有效应征文件不足3个,导致有效应征文件明显缺乏竞争的;
(3)其他有关法规和文件规定的应当重新征集的情形。
2.29 转包与分包
2.29.1本项目不允许转包。
2.29.2本项目是否允许分包详见“应征人须知前附表”,本项目不允许违法分包。
2.30 需要补充的其他内容
需要补充的其他内容:见应征人须知前附表。

 

第三章 合同格式

 


成都太平洋保险金融大厦
负二层食堂排污管道改造工程合同

 

 

 

 


发包人:中国太平洋保险(集团)股份有限公司

承包人:                                                    


发包人:中国太平洋保险(集团)股份有限公司
承包人:                                                                        

根据《中华人民共和国民法典》及有关规定,经双方协商,签订本合同。
第一条工程项目
1.1工程名称:成都太平洋保险金融大厦负二层食堂排污管道改造工程
1.2工程地点:成都市高新区天府三街199号太保金融大厦
1.3工程范围、内容及承包方式
1.3.1承包人根据发包人提供的项目需求书及图纸,并根据工程现场情况给出最优设计方案,经发包人核准后,照图施工,完成本工程穿梭梯厅的提升改造等。
竣工图由承包人负责,工程竣工时将竣工资料(含竣工图)一份纸质文件及一份完整的电子文档(PDF格式)交给发包人。
1.3.2工程范围:方案图(附件1)及主要设备、材料工艺要求和技术要求的内容。
1.3.3设计及施工均不得改变房屋结构和损坏房屋承重构件,保证房屋的承受能力和安全使用。
1.3.4承包方式:包深化设计、包工、包料、包质量、包工期、包安全文明施工、包检验(报检)费、包运输、包安装、包技术服务(含技术资料、图纸的提供)、包验收通过,直至项目验收合格交付使用及质保期承诺期满。
第二条工期
工期30 日历天。计划开工日期: 2023 年    月   日。实际开工日期自合同签订日起算。
第三条工程结算总价、工程价款和付款方式
3.1工程结算总价以发包人指定的全过程造价咨询单位(如有)的审核价并经发包人确认后为准。
3.1.1发包人、承包人双方约定,总价包干范围外的工程结算委托发包人指定的全过程造价咨询单位承担本工程结算的审价工作,以该全过程造价咨询单位的审核价并经发包人确认后为最终结算价。
3.2工程价款的约定和结算形式。
3.2.1单价按照中标价确定,中标价预算明细详见附件2《工程量清单》。
3.2.2中标总价(下称“合同总价”)为人民币(含税)        元,大写(含税):    ,增值税税率为【】,不含税金额为:   元,大写:   元,税金为:   元,大写:   元,合同总价为包干总价。因政策等的修订或变化导致增值税税率调整的,则增值税税率、税额及合同价款作相应调整,但不含税价款不因此而调整。包干范围外的变更价款的确定按照3.3款确定,工程量按照经过全过程造价咨询单位审核的实际发生量计算;若工程结算超过中标价5%的部分发包人将不予结算,施工过程中,发包人与承包人将严格控制变更、增加项目情况,但由于发包人设计变更造成项目增加的情况除外。
3.3变更价款的确立。
3.3.1合同中已有适用于变更工程的单价,按合同已有的单价变更合同价款。
3.3.2合同中已有类似于变更工程的单价,可参照类似单价变更合同价款;
3.3.3合同中没有适用或类似于变更工程的单价,双方协商确认。
3.3.4支付确认的条件按第3.4条执行。
3.4付款方式
3.4.1进度款:在承包人签订本合同材料运到工程现场后,发包人支付合同总价的30%工程款给承包人,即人民币        元
3.4.2结算款:工程完工、达到合格工程验收标准,经由发包人验收合格并交付发包人,并经全过程造价咨询单位审价和发包人确认后,发包人预留工程结算总价的3%作为承包人的质量保修金,其余款项在结算完成后三十天内,由发包人支付给承包人。
3.4.3本合同约定的发包人应付价款是发包人在本合同约定的交易(包括但不限于从承包人取得相应服务/购买有形或无形产品,以下简称交易)项下应向承包人支付的所有价款,包括承包人为交易而发生的设计费、材料设备费用、工程安装费用、设备调试费用、仓储费用、成品保护费用、人工费、运输费用、装卸费用、保险费、交通费、差旅费、通讯费、复印费等实际开支及所有杂费和依法应由承包人承担的税费。除前述应付款项之外,发包人不需要为本合同项下的交易向承包人支付任何其他价款。承包人应向发包人开具真实有效的增值税专用发票,发包人收到发票经过验证后付款。承包人应就本合同项下约定之业务向发包人开具真实、合法、有效票据(发票),若因承包人原因或所开票据(发票)存在问题造成发包人日后发生税收风险而产生的经济损失,全部由承包人承担。
3.4.4支付方式:银行汇款,发包人付款前,承包人应向发包人提交书面付款申请,并开具合法有效同等金额的增值税专用发票,否则发包人有权拒绝付款且无需承担任何责任,直到承包人开具合法合规且符合发包人要求的发票为止。
第四条材料设备供应
4.1本工程使用的建筑装饰材料,应为符合工程设计要求和国家、地方、行业标准的优等产品,并具有法律效力的合格证书或检验报告。
4.2所需用材料由承包人采购供应至发包人工地,所供应的材料必须按照征集文件中明确的品牌、规格、型号、等级(如有)进行采购,不符合质量要求或规格有差异,应禁止使用。若已使用,对工程造成的一切损失由承包人负责。
4.3大宗材料必须事先提供样品给发包人确认。大宗材料进场后均须通知发包人代表进行验收,并出具相关材料及设备的产品合格质量证明文件,验收合格后方可用于工程,发包人代表须以书面确认备案。未经验收合格的材料设备承包人应重新采购,发包人不负担重新采购的费用,并且由此引起工期延误等损失均由承包人承担。
4.4材料设备应附有出厂合格证明。如一方对材料设备有异议,应进行检验。如检验合格,检验费由持有异议一方负责,否则由承包人承担。
4.5承包人应按材料检测规定,在发包人代表的见证下将材料现场取样送样检测。
第五条工程质量标准和保修期
5.1工程质量标准按国家、地方现行施工及验收规范,标准不一致的,以其中最高(最严格)标准为准。
5.1.1工程质量:达到合格工程验收标准。
5.2对施工过程中存在质量问题,经发包人确认后应以书面或口头通知承包人,承包人在收到通知两天内采取有效措施纠正。否则,承包人构成违约,发包人有权收取相当于本工程合同总价2%的违约金,若承包人仍未采取有效措施纠正,发包人有权单方无责解除本合同,由此造成的损失由承包人承担。
5.3 整体保修期为2年,自工程验收合格且发包人收到承包人提交的经发包人认可的质量保修书之日起计。
5.3.1保修期内无质量问题发生的,质量保修金待保修期届满后,由承包人提出书面申请,经发包人核批后办理退还手续,无息退还保修金;保修期内如存在质量问题,由承包人负责修复,承包人不进行修复的或经过三次维修仍不能解决问题的,则发包人有权委托其他单位进行修复,保修期满结算时在质量保修金内扣除维修费,且承包人还应承担维修费用15%的违约金。维修费用以发包人委托其他单位修复发生的实际金额为准,发生金额大于质量保修金总额的,承包人还需向发包人另行支付超出部分的金额。
5.3.2保修期内项目工程清单内的所有项目出现问题,承包人在接到发包人通知后12小时内到达现场修复完毕;其他质量问题,承包人在接到发包人通知后2天内修复完毕。
5.3.3经双方鉴定,如出现的质量问题,属承包人施工或材料造成的,由承包人负责无条件支付修复或更换的费用;属发包人使用不当造成的,由发包人负责修复或更换费用。如双方对质量问题有争议,可以提交广州建设工程质量监督站裁定。
第六条 双方责任
6.1 发包人责任
6.1.1 协助承包人办理入场施工等相关手续。
6.1.2 指派  高杰     为发包人代表。
6.1.3 按合同约定,向承包人支付工程款。
6.1.4 组织工程竣工验收和办理竣工结算。
6.2承包人责任。
6.2.1承包人收到《成交通知书》后尽快组织设计、施工,设计图纸应经有资质的设计单位审核并出具意见。
6.2.2 承包人负责在开工前办理入场施工手续。
6.2.3 严格按施工图纸和工程量清单施工,如有变更,必须严格执行变更程序。
6.2.4  严格执行施工规范、质量标准、安全操作规范、防火安全规范和环境保护规定。
6.2.5 施工中非经发包人同意,承包人不得擅自停工,由此造成的延期、返工等损失由承包人承担。
6.2.6 委派项目经理,       为承包人驻工地代表,按施工规范做好施工质量、安全管理。承包人驻工地代表全权代表承包人履行本合同项下的承包权利、义务和责任。
6.2.7 承包人应充分了解现场条件,合同期内的气候条件,当地政府和国家有关部门的规定等。任何因承包人忽视上述情况而引起的损失,发包人不承担责任。施工过程中承包人须熟读图纸,理解发包人意图,因此施工造成工期、质量、效果不理想的返工由承包人承担责任。
6.2.8 要做好成品保护,包括其它单位的产品、成品,若损坏了应负责恢复原状,否则应给予受损害方赔偿。
6.2.9 做好工程竣工后的场地清理,并将门窗、玻璃、地面清扫干净。
第七条 设计及施工变更
7.1发包人提出的设计变更。设计及施工中,发包人如要求承包人停止工程的部分、全部设计或施工,或者对工程的规模大小、标准等进行变更,应以书面通知承包人,列明停止施工或变更工程的理由、工程部位、时间、材料、设备等。变更文件送达承包人后,即停止受变更影响的部位或工序的购料和施工。发包人要求变更的,其经济责任由发包人负责,承包人协助发包人处理。
7.2承包人提出的设计变更。因承包人自身设计、深化设计不足、错误等原因导致的变更不属于本合同项下的设计及施工变更。未经发包人批准,承包人不得擅自对工程进行变更。所有承包人提出的工程变更,必须书面提交给发包人并征得发包人书面同意,方能实施。承包人的书面变更申请和上述两方同意变更的书面文件作为结算时增加或变更工程费用结算的依据。承包人提出的设计变更,如该变更是由于承包人原因导致的,则其经济责任由承包人承担,工期不予顺延。
7.3 工程变更发生十五天内,承包人须办理完毕工程变更的签证手续,如逾期办理,视作承包人放弃对该部分变更的索赔。                                                                                            
7.4工程变更要及时办理签证手续,不得事后补签。
第八条 现场管理、防火约定及安全文明施工
8.1 承包人严格执行建设行政主管部门施工现场管理规定:
8.1.1 无房屋管理部门审批手续和设计单位的加固图纸,不得拆改工程内的建筑主体和承重结构。
8.1.2 遵守物业管理规定的施工时间,不得扰民及污染环境。
8.1.3  因进行施工造成管道堵塞、渗漏、停水、停电等,由承包人承担应修理和损失赔偿的责任。
8.1.4 负责工程成品的保护,拆卸下来的原防火门,交由本项目物业公司保管。
8.1.5 负责将施工垃圾装袋,及时清运到物业管理公司指定位置,并由承包人负责支付物业管理公司所收的相关费用;或者由承包人自行清运到政府指定的垃圾堆放场。
8.2 防火约定:
8.2.1 承包人在施工期间应严格遵守《中华人民共和国消防条例实施细则》和其他相关的法规、规范。
8.2.2  由于承包人在施工生产过程中违反有关安全操作规程、消防条例,导致发生安全或火灾事故,承包人应承担由此引发的一切损失。
    8.3安全文明施工约定:
    8.3.1 承包人须执行现行的安全文明施工法规、规章及条例。严格按照安全标准组织施工,并随时接受主管部门安全检查人员依法实施的监督检查,采取必要的安全防护措施,消除事故隐患,有关费用已包含在合同总价中,不再另行计取。由于乙方安全措施不力造成事故的责任和因此发生的费用,由乙方承担。
    8.3.2 施工人员须按物业管理的规定,办理工作证。
    8.3.3 施工现场不得住宿、生火做饭、抽烟。
    8.3.4 工地现场不得打架、斗殴和闹事。
   8.3.5 施工人员不得有刑事犯罪记录。
    8.3.6 施工现场必须做好场地围蔽。
   8.3.7 现场必须安排专门的保安人员,非施工人员不得进出施工场地。
8.3.8下班时间,承包人必须封闭施工现场,不得敞开施工场地。
8.4 劳资管理
8.4.1承包人招用建筑工人的,应当依法与所招用的建筑工人订立劳动合同,实行建筑工人劳动用工实名制管理,承包人应当按照有关规定开设建筑工人工资专用账户(如需)、存储工资保证金,专项用于支付和保障该工程建设项目建筑工人工资。
8.4.2 承包人应当在工程项目部配备劳资专管员,对劳动用工及工资发放实施监督管理。承包人拖欠建筑工人工资的,应当依法予以清偿。
第九条 工程验收
    9.1 工程竣工验收以施工图及说明书、图纸会审记录、国家颁发的现行施工及验收规范和质量检验标准为依据。
9.2 隐蔽工程验收。
9.2.1 隐蔽工程未经发包人验收合格不得隐蔽。隐蔽工程在隐蔽前3天,由承包人准备好验收前的测试记录、图纸和照片并通知发包人到场验收,发包人不按时验收的,承包人应书面通知催告发包人进行验收。
9.2.2 图纸与现场不符的或其它因素造成的变更,经发包人同意后,未按施工图施工的隐蔽工程部分在隐蔽前3天,由承包人准备好验收前的测试记录、按更改后的与现场相符的图纸和照片并通知发包人到场验收,发包人不按时验收的,承包人应书面通知催告发包人进行验收。若承包人未能及时提供更改后的与现场相符的图纸的,由发包人确认不具备隐蔽工程验收条件,发包人不予验收,并责令承包人立即整改,两天内整改到位,承包人仍未及时整改致使无法通过验收的一切后果,包括质量、结算(包括由此引起的结算依据不足等责任)由承包人承担。
9.3 工程(包括单项工程)竣工后先由承包人自检,自检合格后书面通知发包人验收。发包人验收合格并签字确认,同时承包人于十五天内将全部竣工资料(包括竣工图纸)向发包人移交,如不合格的,由承包人在商定的期限内整改或返修后再验收,直到符合要求为止。最后验收合格的日期为竣工日期。
第十条  竣工资料
    承包人按《建设工程文件归档整理规范 (GB/T50328-2014)》《建设工程档案编制规范》(DBJ 440100/T 153-2012)及成都市城市建设档案馆有关工程项目归档资料的相关要求,负责整理工程竣工资料,并在竣工验收后十五天内将竣工资料(含竣工图)一份纸质文件及一份完整的电子文档(PDF格式)交给发包人。
第十一条 发包人 违约责任
11.1发包人应在合同规定时间内向承包人支付工程款,且经承包人催告后合理期限内仍未支付的,催告期限届满后每逾期1天发包人向承包人偿付欠付金额的万分之二的违约金,累计不超过合同总额的5%。
11.2发包人有权单方解除本合同而无需告知承包人原因或理由,并不属于违约。发包人解除本合同的书面通知到达承包人之日合同解除。发包人依据本款解除合同后,应按承包人已完成的且经发包人确认的工作支付工程款。除此之外,发包人无须向承包人支付任何赔偿金、补偿金等费用,承包人不得向发包人提出任何索偿要求。
第十二条 承包人 违约责任
12.1 如因承包人原因造成工期延误,每延误1天,承包人应按合同总价的2‰向发包人承担支付违约金的责任,违约金直接在工程结算款或者其他发包人应付工程款中扣除。逾期超过30天,发包人有权单方无责解除合同,并追究承包人的违约责任,包括但不限于扣除违约金、赔偿发包人全部经济损失等。
12.2 如施工质量不合格,承包人无条件修复后还须每次按工程结算总价的3%向发包人承担支付违约金的责任且工期不予顺延,违约金直接在工程结算款中扣除。如承包人拒绝修复,发包人有权扣除前述违约金并拒付后续款项,并有权单方面无责解除合同,发包人另行委托第三方修复的费用由承包人承担,且承包人还应承担维修费用15%的违约金。对发包人因此而遭受的其他损失,承包人应一并承担。
12.3 承包人违约的,应承担发包人因此造成的一切损失或者一切费用,包括但不限于律师费、诉讼费、鉴定费、保全保险费等。
12.4 承包人不履行合同义务或不按合同约定履行义务,发包人有权单方无责解除合同,承包人应按本合同总价的5%支付违约金,并赔偿因其违约给发包人造成的损失,与合同约定的其他违约责任一并执行。当发生下列情况之一时,承包人按上述约定承担违约责任:
12.4.1 非发包人要求,承包人擅自在工程完成前停工的;
12.4.2 拒绝执行发包人的指令,且经发包人催告后仍未执行的;
12.4.3 已完工工程质量不符合发包人要求,经整改无效或改进不明显的;
12.4.4 因承包人原因延期竣工累计超过15天;
12.4.5 因承包人自身债务问题造成发包人被法院要求协助诉讼保全、协助执行(法院的法律文书形式包括但不限于协助执行通知、履行到期债务通知等协助执行函件),承包人在发包人通知后14日内不能妥善解决的。
12.5 承包人不能有任何形式的转包或未经发包人同意的分包,否则,一经发现,承包人须向发包人支付合同总价10%的违约金,且发包人有权立即单方解除本合同,承包人必须向发包人赔偿由此造成的一切损失。
12.5.1本工程实际施工人(因承包人或其分包人实施违法分包、非法转包或者挂靠等违法行为而产生)、劳务分包单位、分包人或者材料设备供应商等单位,因工程款未得到及时支付或其他原因而起诉发包人的,发包人因参与此等诉讼、仲裁产生的任何费用,包括但不限于诉讼费、仲裁费、律师费、公证费、交通费、咨询费、鉴定费和其他开支,均由承包人承担,此外,承包人应向发包人支付诉讼请求标的额5%的违约金;如裁判机关判令发包人承担连带责任或者补充清偿责任导致发包人先行垫付的,应当由承包人承担,且承包人还应向发包人支付垫付金额10%的违约金。前述违约金、赔偿金、费用、款项等,发包人有权在应付工程款中直接扣除,不足部分有权向承包人索赔。
12.6 无论任何原因,因承包人原因导致发生损害发包人声誉事件的,包括但不限于工程施工现场均不得发生民工、群众闹事的事件,或在工地内外出现针对本工程或发包人的闹事行为(包括承包人所雇用的民工讨薪事件),如果发生一次,承包人向发包人支付合同总价5%的违约金,同时,发包人有权解除本合同,承包人并应赔偿因此而给发包人造成的一切损失。
12.7 因承包人原因造成本工程施工过程及保修期内质量事故,承包人应承担由此引起的一切责任及因此而产生的任何损失和费用。
12.8 承包人不按合同约定完成清场工作、及时撤场并移交工程的,按每天人民币1000元向发包人支付违约金。发包人有权自行或聘请第三方完成清场工作,相关费用由承包人承担。
12.9 本合同履行过程中,无论因何种原因解除合同的,承包人应在合同解除通知书到达之日起7天内向发包人提交全套的已施工和在施工资料,同时提交一份合同解除结算报告文件,并在合同解除通知书到达之日起3个日历天内完成撤场。因承包人原因导致合同解除的,发包人有权要求承包人承担相应的违约及损失赔偿责任。合同解除后,承包人不及时移交施工资料、不撤离施工现场并办理相关证件变更手续(如需)的,承包人每日应按人民币1000元向发包人支付违约金且发包人有权不予结算和付款,由此造成的损失由承包人自行承担。
12.10承包人项目经理不按时到职、违反本合同规定兼任其他项目工作、承包人未经发包人同意更换项目经理、承包人拒不更换不合格的项目经理的,每违反一项承包人应向发包人支付每人次1万元违约金。
12.11承包人未经发包人同意更换项目其他管理人员的、承包人拒不更换不合格的项目其他管理人员的,每违反一项承包人应向发包人支付每人次1万元的违约金。
第十三条  工期
13.1本合同工期包含法定节假日在内,已充分考虑了以下因素对工期的影响:
13.1.1社会条件因素,包括法律变化、政府禁令(如禁止夜间施工、因环境治理要求停工等)、两会、政府惯例性的重大会议、高考、中考、国家庆典、外交来访、体育赛事、国际性或公共性活动、交通管制、交叉施工等;
13.1.2自然条件因素,包括地质及水文条件、气候条件(如降雨、大风等)、冬雨季施工、施工现场内外环境、场地不足等。但是不可抗力除外;
③任何施工前的准备工作、深化设计及深化设计审批流程所需的时间;
④向政府有关主管部门提交任何许可申请(如有)所需之审批、处理的合理时间。
13.2发包人未能按合同履行,出现以下情形时工期顺延:
(1)未按期交出施工场地,未按期提供水、电接入点并导致关键路径的工期延误的;
(2)无理由逾期验收超过7天。
第十四条 保险责任
14.1承包人应负责本工程的保险办理,保险费用已包括在合同总价里面。
14.2 承包人须对其雇员(包括其现场管理人员、其下属的劳务人员)及经发包人允许进入现场的人员在现场发生的意外或伤亡负全责,承包人须按照国家及当地有关规定为上述人员办理工伤保险,费用已含在合同总价内。
14.3 非因发包人原因导致任何承包人雇员的意外或死亡使发包人遭受索赔、声誉影响等损失的,发包人可向承包人追偿因此造成发包人损失的一切费用(包括但不限于为此支出的赔偿金、诉讼费、律师费、取证费用、鉴定费用、罚款等相关费用),承包人无权以任何理由拒绝。发包人有权从应付承包人工程款中直接扣除相应的费用;如有不足,承包人应另行补足。
14.4承包人依照安全生产法律、法规的规定购买安全生产责任险,费用已含在合同总价内。
14.5 承包人未按规定购买意外伤害保险而引致的一切法律责任及经济损失皆由其承担,且发包人保留代其购买并从承包人的合同总价内扣除相应保险费用的权利。
第十五条  争议解决方式
双方发生争议时应协商解决,协商不成时,任何一方可向工程所在地有管辖权的人民法院起诉。在双方解决争议的过程中,除发包人明示暂停的外,承包人都有义务继续进行本合同约定的工作,不得因此停工、怠工。
第十六条  其他约定条款
16.1知识产权
16.1.1承包人应保证其准备或提交给发包人的全部设计成果在没有且不会侵犯任何第三方的知识产权(包括但不限于著作权、商标权、专利权)或专有技术或商业秘密。
16.1.2承包人应保证,若设计成果使用或包含有任何其他人的知识产权或专有技术或商业秘密,承包人已经获得权利人的充分授权。承包人还应保证,该些知识产权可用于本项目的设计成果。尽管如此,若发包人仍被指控侵犯上述权利,则由此而产生的或与此有关的任何责任最终均由承包人承担。
16.1.3承包人在履行和完成本合同项下设计服务工作过程中各阶段形成的全部设计成果的财产权及知识产权归发包人所有。发包人有权在本项目上自由使用所有设计成果,并有权根据需要自行或委托第三方对设计成果进行修改。如此等修改并非委托承包人完成,则承包人无需对此等修改承担任何责任。承包人对其设计成果享有署名权。
16.1.4合同期限内,承包人在履行和完成本合同项下设计服务工作过程中各阶段形成的全部设计成果,未经发包人同意承包人不得披露或者泄露,且不得用于除本合同外的其他任何工作。
16.1.5 发包人因使用承包人设计的作品而导致承担侵权责任时,承包人应承担所有因侵权而导致的法律规定的责任并赔偿发包人的损失。
                                                        
                                                         

16.2 反商业贿赂条款
反商业贿赂条款是本合同之必备附件,与本合同具有同等法律效力,合同签署各方应认真阅读本约定,同意并遵守如下反商业贿赂约定:
16.2.1发包人、承包人双方明确知晓并愿意严格遵守中华人民共和国反商业贿赂的法律规定,双方明确意识到任何形式的贿赂和贪渎行为将触犯法律,并将受到法律的严惩。
16.2.2发包人或承包人均不得向对方或对方经办人或其他相关人员索要、收受、提供、给予合同约定外的任何利益,包括但不限于暗扣、现金、购物卡、实物、有价证券、旅游或其他非物质性利益等,但如该等利益属于行业惯例或通常做法,则须在合同中明示。
16.2.3发包人严格禁止发包人经办人员的任何商业贿赂行为。发包人经办人员发生本约定第16.2.2条所列示的任何一种行为,都是违反发包人公司制度的,都将受到发包人公司制度和国家法律的惩处。
16.2.4发包人郑重提示:发包人反对承包人或承包人经办人员为了本合同之目的与本合同以外的任何第三方发生本约定第16.2.2条所列示的任何一种行为,该等行为都是违反国家法律的行为,并将受到国家法律的惩处。
16.2.5承包人或承包人经办人员违反上述第16.2.2条、第16.2.3条、第16.2.4条之规定,发包人有权解除本合同,并可向国家有关部门就承包人的行为进行举报。由此给发包人造成的损失以及可能引起的对第三人的责任,均由承包人承担。
16.2.6本条所称“其他相关人员”是指发包人、承包人经办人以外的与合同有直接或间接利益关系的人员,包括但不限于合同经办人的亲友。
16.3 增值税相关条款
双方经友好协商,同意并遵守执行如下增值税相关约定。
16.3.1价格条款
16.3.1.1合同正文所述价款为含增值税价款,即发包人对承包人的全部给付义务。
16.3.1.2如果本合同价款增加或减少的,相应的增值税款将随之增加或减少。如果承包人按照相关法律规定或本合同的约定应向发包人退还全部或部分价款的,那么相应的增值税款承包人也应当退还发包人。
16.3.2发票条款
双方均成为增值税纳税人后:
16.3.2.1承包人应当向发包人开具合法有效的增值税专用发票。
16.3.2.2发票开具方式:承包人应当向发包人按照提供的服务内容,根据现行增值税法的要求,按适用的税率开具合法有效的增值税专用发票。如果承包人是小规模纳税人,承包人应当向主管税务局申请代为开具增值税专用发票,以确保发包人可以抵扣增值税进项税。
16.3.2.3发票开具格式:发票开具单位和收款单位均应为承包人,承包人开具的增值税专用发票还应符合如下要求:
(1)字迹清楚,不得压线、错格,发票打印内容不得超过密文区;
(2)抵扣联和发票联必需加盖发票专用章,盖章时不可盖住金额与备注栏;
(3)收款人、复核人、开票人必须齐全,不能手写,不能为英文名;
(4)开票人、复核人不得为同一人;
(5)承包人汇总开具专用发票的,需同时提供使用防伪税控系统开具《销售货物或者提供应税劳务清单》;
(6)全部联次一次填开,所有联次的内容、各项金额一致。对不符合上列要求的专用发票,发包人有权拒收或退回。
16.3.2.4发票开具与送达:承包人应当于收到发包人通知后十(10)个工作日内开具合法有效的专用发票并送达发包人。承包人应当通过专人或快递等可查询接收记录的方式,向发包人发票接收人员送达发票。
发包人的发票接收人员及其联系方式如下:
联系人:
电话:
承包人的发票事宜联络人及其联系方式如下:
联系人:
电话:
如果双方发现存在发票遗失的情况,应当共同按照相关法律规定的要求进行发票遗失的处理。承包人应当按照相关法律规定的要求配合发包人进行发票遗失的处理。如果因承包人的原因导致任何延期开具和交付发票的情况,发包人有权就因此而产生的损失要求承包人进行赔偿。
16.3.2.5发票的退回:发包人若发现承包人送达的增值税发票有以下情况之一时,有权将该发票退回至承包人,承包人应当在收到退回的发票之日起十(10)个工作日内重新开具合法有效的增值税专用发票,并向发包人发票接收人员交付该增值税专用发票:
(1)未按照相关法规的规定或本合同的约定填写和开具增值税专用发票;
(2)发票送达发包人的日期超过发票开具日期1个自然月的;
(3)承包人送达的增值税专用发票无法认证;
(4)未按照相关法规规定或本合同约定的其他需要退回的情形。
16.3.2.6红字发票的开具:如果发包人收到承包人送达的增值税发票后,出现服务价款的变更等需要开具红字发票的情况,承包人应当按照相关法规的规定或本合同的约定,在发包人提出开具红票要求的十(10)个工作日内向发包人开具并送达合法有效的增值税红字发票。发包人将配合承包人开具红字发票。
16.3.2.7如果承包人未能按本合同的约定向发包人开具并及时交付合法有效的发票,或者承包人虽然按约定向发包人交付发票,但交付发票的真实性和有效性存在问题致使发包人无法抵扣发票上注明的进项税款,发包人将不予支付无法取得合法有效发票对应的总价款。如果发包人因抵扣承包人开具的非真实有效的发票而遭受损失或税务机关处罚的,承包人应当赔偿发包人因此受到的全部损失。
第十七条      附则
17.1 本合同经发包人负责人或授权代表签字(或盖章)并加盖单位公章、承包人法定代表人(负责人)或授权代表签字(或盖章)并加盖公章后生效。
17.2除保修条款之外的其它条款,在工程验收、交接完毕,发包人支付相应款项后自动终止;保修期满,发包人支付保修对应尾款后有关保修条款终止。
17.3 本合同一式肆份,双方各执贰份。
17.4 本合同签订后工程不得转包、违法分包。
17.5 本合同的以下附件为本合同的有效组成部分:
附件1:  负二层排污管道平面布置图
附件2: 《太保大厦负二层食堂排污管道改造工程量清单》
双方确认,本合同载明的各方地址为双方真实有效通讯地址。与签订及履行本合同有关的一切通知、函件或其他法律文件,甲乙双方均应按照上述指定联系人及地址送达。
以专人送达的,由指定联系人签字之日为送达日;以快递方式送达的,以发邮后第三日视为送达;以电子邮件方式送达的,以发送一方系统显示的发送成功之日为送达日;发出方同时采取上述方式送达的,以最先实现送达的方式确定送达日期。
一方地址变更的,应在变更后10日内书面通知对方,否则本合同载明的地址仍为真实有效通讯地址。上述送达地址和联系方式适用范围包括双方非诉时各类通知、合同等文件以及就合同发生纠纷时相关文件和法律文书的送达,同时包括在争议进入仲裁、民事诉讼程序后的一审、二审、再审和执行程序。合同送达条款为独立条款,不受合同整体或其他条款的效力的影响。


发包人(盖公章)
中国太平洋保险(集团)股份有限公司
年   月   日 承包人(盖公章)

年   月   日
单位地址:中国上海市黄浦区中山南路1号 单位地址:
法定代表人或者委托代理人:(签字或盖章) 法定代表人或者委托代理人:(签字或盖章)
电话: 电话:
电子邮箱: 电子邮箱:
开户银行: 开户银行:
账号: 账号:
邮政编码: 邮政编码:


第四章 项目需求书
说明:项目需求书中打“★”号条款为实质性条款,应征人如有任何一条负偏离则导致报价无效。
一、总则
1.本用户需求书适用于成都市天府三街199号太平洋保险金融大厦负二层食堂排污管道改造工程,提出了服务内容的要求。
2.本征集文件提出的是最低限度的商务技术要求。凡本征集文件中未规定,但在相关的国家、地方标准中有规定的规范条文,应征人应按相应标准的条文实施。对国家、地方有关安全、环保等强制性标准,必须满足其要求。所使用的标准如遇与应征人所执行的标准不一致时,按较高标准执行。
3.如果应征人没有以书面形式对本征集文件条文提出异议,则意味着应征人提供的工程服务完全符合本条件书的要求。如有异议,无论大小,都应在应征文件《合同条款偏离表》、《技术条款偏离表》中加以详细描述。
4.本征集文件经征集人、应征人双方确认后作为项目合同的附件,与合同正文具有同等的法律效力。
5.应征人在应征文件中应如实反映所提供服务与本用户需求书的差异。如果应征人没有提出差异,而在执行合同的过程中,征集人发现应征人提供的服务与其应征文件的条文存在差异,征集人有权利追究应征人责任并按合同实施相应的处罚。
6.本用户需求书未尽事宜,由征集人、应征人双方协商确定。

二、★服务要求

对太平洋保险金融大厦负二层食堂排污管道改造工程按图纸进行施工、验收合格。
1.承包方式为包工、包料、包质量、包工期、包安全文明施工、包检验(报检)、包运输、包安装、包技术服务(含技术资料、图纸的提供)、包验收通过,直至项目验收合格交付使用及质保期承诺期满。
2.征集人有权随时通知中选单位解除合同,并对征集人已确认的中选单位的工作内容据实结算。


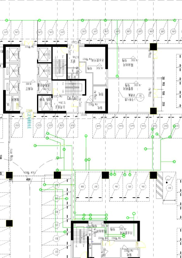
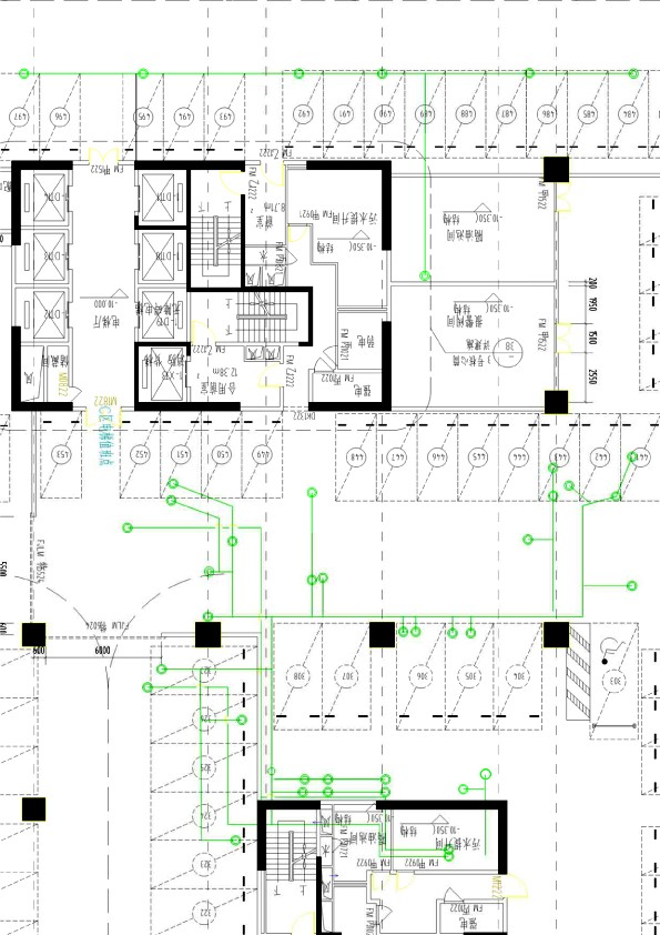
(1)负二层排污管道平面图
    

A区排污管道平面布置图

 

图片1

 


                               

C/D区排污管道平面布置图

图片2

 

 

                         
(2)现场图片

图片3

 


四、现场图片

 

图片4

图片9

图片10

图片11

图片12

图片12

 

 


★三、主要设备、材料工艺要求和技术要求
1、管道:竖向安装Φ110*10mmPE管道,横向安装Φ160*10mmPE管道。间距1.2m采用丝杆Φ160抱箍固定,间距10m或水平变向处安装Φ160检修口。

★四、其它要求
1、施工工期:工期30 日历天,实际开工日期自合同签订日起算。为保证食堂正常营业,施工时间只能为周末或夜间施工,且保证施工区域的管道必须在上午8点排水通畅。
2、服务质量:中选单位派遣项目经理和专业技术人员到工程现场负责施工、安装、调试、验收和试运行;负责免费培训和指导征集人相关人员;提供项目负责人和技术人员名单及24小时联系方式。
3、施工安全,不发生重大安全事故。中选单位须对安全施工承担完全责任。
4、中选单位须提供增值税专用发票进行请款、结算。

第五章 评审办法
123455.1评审小组
(1)评审小组依照征集人有关规定组建,评审小组会负责全部的评审工作,任何人不得干预评审小组的工作。
(2)本次征集采用公开竞价方式进行,评审由评审小组负责完成。评审小组将只对确定为实质上响应征集文件要求的应征文件、澄清和最终报价等内容进行评审;实质上没有响应征集文件要求的应征文件将被视为响应无效。
(3)评审小组在评审过程中出现意见不一致时,遵循少数服从多数原则。
(4)评审依法根据征集文件的规定与应征人的有效应征文件进行评审,并据此推荐、确定中标候选人。
5.2评审程序
(一)应征文件初审。初审分为资格性检查和符合性检查。
1、资格性检查。依据法律法规和征集文件的规定,对应征文件中的资格证明等进行审查,以确定报价应征人是否具备报价资格。
2、符合性检查。依据征集文件的规定,从应征文件的有效性、完整性和对征集文件的响应程度进行审查,以确定是否对征集文件的实质性要求作出响应。
(二)报价的澄清和修正原则:评审委员会可以书面方式要求应征人对应征文件中含义不明确、或者有明显文字和计算错误的内容作必要的澄清、说明或补正。对细微偏差的修正原则,应根据澄清、说明和补正的情况,按征集文件的规定作出最不利于应征人的量化。
(三)对漏项和缺项的处理:评审委员会认为产生的漏项或缺项不会使整个报价低于成本,应征人在澄清、说明和补正中已承认并承诺由其承担该漏项或缺项费用,可将该项所有有效标报价中的最高报价计入其评审价中。若应征人拒绝接受上述修正,其报价将被拒绝。
(四)比较与评价。评审委员会按征集文件中规定的评审方法和标准,对资格性检查和符合性检查合格的应征文件进行商务和技术评估,综合比较与评价。
(五)最后得分:本项目采用最低价中标。
(六)确定成交候选人:征集方按照价格排名确定本项目的中选单位。


第六章 应征文件格式
商务报价文件封面格式:
           (项目名称)
项目编号:              
应征文件
(商务报价文件)

 


应征人:                         (盖单位章)
     法定代表人或其委托的代理人:         (签字或签章)
应征人地址:                           
          

目  录

1、投标函……………………………………………………………………………………(页码)
2、报价一览表………………………………………………………………………………(页码)
3、已标价工程量清单………………………………………………………………………(页码)
4、其他补充材料………………………………………………………………………………(页码)

 

 

 

 

1、投标函
致:中国太平洋保险(集团)股份有限公司
根据成都太平洋保险金融大厦负二层食堂排污管道改造工程征集文件(项目编号:    ,下称《征集文件》),应征人       (应征人名称)提交技术文件正本一份、副本一份,商务文件正本一份、副本一份及电子文档一份。
1.应征人保证,所提供的全部资料是真实、准确且合法有效的。应征人并宣布同意如下:我方将按《征集文件》的规定履行征集过程中应征人的责任和义务,并同意按照贵方要求提供与投标有关的一切数据或资料。我方承诺我方向贵方提交的所有资料、文件均为真实且合法有效,否则贵方有权将其作为无效处理。如贵方彼时已发出确认通知书、或者已经与我方签订正式合同,或者我方已经实际开始履行该合同的,贵方亦有权随时终止,并要求我方承担全部法律责任,包括但不限于要求我方赔偿贵方因此遭受的全部损失。
2.我方已详细审阅全部《征集文件》及其附件,包括答疑会议纪要、澄清修改文件(如有的话)以及全部参考资料和有关附件。我方确认《征集文件》(含澄清、修改文件)为真实、准确和全面,并放弃我方因《征集文件》(含澄清、修改文件)存在任何不明或误解而遭遇损失的情况下,向贵方追索的权利。
3.本投标函自应征文件提交截止之日起有效期为90天。
4.我方承诺对在本次征集活动过程中所获知贵方一切商业秘密保密,不会向任何第三方泄露,不会用于本次征集活动之外的任何其他目的。
5.我方承诺本公司是依法注册成立、具有独立运作能力(包括运营、财务、组织、管理、市场等状况)并能够承担法律责任的企事业单位;遵守国家法律法规,具有良好的商业信誉和健全的财务会计制度,在领取本次征集文件截止时间前三年内经营活动中未出现违规违法等不良记录;提供的产品或服务符合国家、行业标准及贵方要求;愿意且有能力为贵方提供产品或服务,并接受贵方的监督管理;具有签订及履行合同的能力和信誉;未被纳入贵方应征人黑名单;本次领取征集文件截止时间前3年内未曾与贵方发生招标及其他诉讼方面的纠纷。我方不将本项目以任何方式进行转包或分包;我方与参与本次投标的其他应征人不存在任何关联关系。我方承诺如有上述不良记录或行为,贵方有权随时取消我方中标的资格。
6.我方保证,贵方在中华人民共和国境内使用我方提供的货物、技术、工程、服务或其任何一部分时,不会产生因第三方提出侵犯其专利权、商标权或其它知识产权而引起的法律和经济纠纷。如我方不拥有相应的知识产权,则报价总价中已包括合法获取该知识产权的相关费用。如因此而引发任何纠纷和争议,我方将自行负责处理,并补偿贵方因此而受到的任何损失。同时我方将提供全力防止因上述侵权或可能的侵权给贵方带来的直接和预期的损失,包括但不限于提供贵方继续使用本应征文件中的项目服务而需取得的第三方授权、修改本项目服务使其至少在功能上可以替代原服务、提供功能上相等的使贵方可以达到本项目目的的其他服务,并由我方承担因此而产生的所有的费用。
7.我方在此承诺,双方合作后可开具增值税专用发票。
8.与本应征文件有关的一切正式往来通讯请寄:
地址:______________________________   邮编:___________________
联系人:____________________           职务:___________________
固定电话:__________________           手机号码:_______________
传真:____________________             E-mail:________________


应征人名称:(加盖单位公章)
应征人法定代表人(负责人)或授权代表签字:
日期:     年   月   日

2、报价一览表

项目名称:成都太平保险洋金融大厦负二层食堂排污管道改造工程
项目编号:

应征人名称
报价项目成都太平保险洋金融大厦负二层食堂排污管道改造工程
不含增值税投标总价(元)
增值税税率
含增值税投标总价 (元)
施工工期
(日历天)
30 日历天(从签订合同之日起计算,至验收合格日期为止)
保修期整体保修期为2年,自工程验收合格且发包人收到承包人提交的经发包人认可的质量保修书之日起计。
工程质量
项目负责人
(姓名/等级)
备注


备注 
报价说明:
1、以上内容为实质性响应内容,报价应包含本项目所需的一切税费及相关费用;
2、报价可只填小写,如出现大小写不一致的,以大写为准,(四舍五入保留两位小数)。
3、(1)上述报价应该与工程量清单中的对应项一致,否则以工程量清单中的为准;(2)含增值税投标总价=不含增值税投标总价×(1+增值税税率),如不一致,以不含增值税投标总价修正含增值税投标总价。
4、应征人报价应当考虑税费等一切费用,要求应征人必须提供增值税专用发票。
5、如有多位项目负责人的,上表可只填写一名项目负责人。

应征人:_______________________(盖单位公章)
应征人法定代表人或其授权委托人:(签字或盖章)
年   月   日

3、已标价工程量清单
1. 已标价工程量清单应按第七章“工程量清单”中的相关表格及投标报价说明填写。构成合同文件的已标价工程量清单包括第七章“工程量清单”有关工程量清单、投标报价以及其他说明的内容。
2. 一般计税法建设工程已标价工程量清单表格,采用一般计税方法增值税税率9%。具体内容包括:
1.1 投标总价
1.2 工程量清单


4、其他补充材料

 

 

 

 

 

 

 

 

 

 

 

 

 

 

 

 

 

 

 

 


商务文件封面格式:


           (项目名称)
项目编号:           
应征文件
(商务文件)

 


应征人:                         (盖单位章)
     法定代表人或其委托的代理人:         (签字或签章)
应征人地址:                           
          

目 录

1、近年完成的类似项目情况表……………………………………………………………………(页码)

2、合同条款偏离表……………………………………………………………………(页码)

3、其他补充材料……………………………………………………………………(页码)

1、近年完成的类似项目情况表

序号合同名称 用户单位名称 签订合同时间 合同金额(万元) 合同高度 合同主要标的合同发包人联系人联系电话
合同金额累计:        万元


备注:
1.应征人必须如实填写,并保证内容真实可靠,如有弄虚作假,将取消投标资格。
2.按合同签订时间,须提供合同关键页复印件(包含但不限于合同首页、合同签字页、合同清单等)、竣工验收报告复印件、高度证明文件复印件;合同签署时间、双方签章等关键信息缺失或模糊不清无法判断合同内容的,不予认可。

2、合同条款偏离表
应征人名称:       

 

序号合同条目号  合同内容
(有偏离需填写)
应征文件响应情况偏离情况说明
1合同第1条   
2合同第2条   
3合同第3条   
4合同第4条   
5合同第5条   
6合同第6条   
7合同第7条   
8合同第8条   
9合同第9条   
10合同第10条   
11合同第11条   
12合同第12条   
 …   


说明:1)应征人应对征集文件中的“第三章”进行应答。无应答的,将可能导致其投标无效。
2)应征人须对每一款作出明确答复(如果需要,可给出详细的应答内容),否则将可能被视为放弃应答。
3)任何偏离情况,均须填写在此表上。对于应征人提出的但未在此偏离表列明的偏差部分,征集人将视为应征人未提出该偏差。

3、其他补充材料


技术文件封面格式:

           (项目名称)
项目编号:           
应征文件
(技术文件)

 


应征人:                         (盖单位章)
     法定代表人或其委托的代理人:         (签字或签章)
应征人地址:                           
           

目 录

1、法人代表证明文件…………………………………………………………………………(页码)
2、法定代表人/负责人授权委托书…………………………………………………………(页码)
3、技术条款偏离表…………………………………………………………………………(页码)
4、应征人基本情况表…………………………………………………………………………(页码)
5、近年完成的类似项目情况表…………………………………………………………(页码)
6、项目管理机构…………………………………………………………………………(页码)
7、近年财务状况表…………………………………………………………………………(页码)
8、项目实施方案.…………………………………………………………………………(页码)
9、其他补充材料…………………………………………………………………………(页码)

1、法人代表证明文件
应征人名称:                            
单位性质:                               
地址:                                  
成立时间:                         
经营期限:                              
姓名:         
系                              (应征人名称)的法定代表人(负责人)。
特此证明。
                           应征人:                 (盖单位章)
                                                月       日

2、法定代表人/负责人授权委托书

本人       (姓名)系        (应征人名称)的法定代表人,现委托        (姓名)为我方代理人。代理人根据授权,以我方名义签署、澄清、说明、补正、递交、撤回、修改           (项目名称)应征文件、签订合同和处理有关事宜,其法律后果由我方承担。
代理人无转委托权。
附:法定代表人身份证明
应征人:                               (盖单位章)
法定代表人:                               (签字)
委托代理人:                               (签字)
委托代理人身份证号码:                           
联系方式(手机):                       
                    

 

 

 
3、技术条款偏离表
应征人名称:       

序号 征集文件条目号 征集文件的技术规范 响应情况偏离情况说明
1
2
3
4
5
6
… 

 

说明:1.应征人应对征集文件中的“第四章”进行应答。无应答的,将可能导致其投标无效。
2.应征人须对每一款作出明确答复(如果需要,可给出详细的应答内容),否则将可能被视为放弃应答。


4、应征人基本情况表

应征人名称 
应征人名称  邮政编码 
联系方式联系人电 话 
 传  真网 址
法定代表人姓名  技术职称电话
成立时间员工总人数:
营业执照号 其中  高级职称人员 
注册资金
开户银行
银行账号
经营范围
备注


4.1 对于已按商事登记改革要求更换新版营业执照,如营业执照无经营范围、注册资本等信息的,还需提供商事主体信息最新网页查询结果截屏打印件(包括但不限于注册时间、注册资金等内容),对于已按“三证合一”登记制度更换新版营业执照的(营业执照、组织机构代码证、税务登记证三证合一),须提供由工商部门颁发的加载统一社会信用代码的营业执照。
4.2 一般纳税人证明文件
提供税务登记证(加盖“一般纳税人”戳章)或税务机关出具的其它证明材料(如税务机关网站查询结果截图,税务机关盖章的《增值税一般纳税人资格登记表》或《增值税一般纳税人资格认定书》等)。
4.3 企业信息变更证明材料扫描件(如有)
若应征人成立至今有发生名称、地址、注册资金等变更情况,并可能导致与应征文件中所提供的材料中的单位名称不一致的,必须提供加盖公章(同时有应征人公章和第三方如工商局的公章)的公司变更说明材料,否则可能导致应征人的相关材料被认定无效。如无,则无需提供。
4.4 本项目要求提供的其他资质文件(详见第一章 征集公告 “二、应征人资格要求”需提供的资料)
1)企业、法定代表人未被人民法院列入“失信被执行人名单”
提供:“信用中国”(www.creditchina.gov.cn)失信被执行人名单、重大税收违法案件当事人名单、政府采购严重违法失信行为记录名单的网页截图
2)资格性审查要求的其他证明资料
说明:
上述资质(格)证明文件因复印件模糊造成的误解,由应征人负责。
应征人应保证所递交的资质(格)证明文件真实有效,由此产生的后果由应征人负责。
5、近年完成的类似项目情况表
序号 合同名称 用户单位名称 签订合同时间 合同金额(万元) 合同高度 合同主要标的 合同发包人联系人联系电话

 

序号 合同名称用户单位名称 签订合同时间合同金额(万元) 合同高度 合同主要标的合同发包人联系人联系电话

 

 
合同金额累计:        万元


备注:
1.应征人必须如实填写,并保证内容真实可靠,如有弄虚作假,将取消投标资格。
2.按合同签订时间,须提供合同关键页复印件(包含但不限于合同首页、合同签字页、合同清单等)、竣工验收报告复印件、高度证明文件复印件;合同签署时间、双方签章等关键信息缺失或模糊不清无法判断合同内容的,不予认可。

 

 

 

 

6、项目管理机构

职务 姓名 职称执业或职业资格证明(如有)备注
证书名称级别证号  专业 
项目负责人    
现场施工负责人
技术人员 
……      
其他人员

 

7、近年财务状况表

资产总额                      万元   固定资产                          万元
 流动资产                      万元
负债总额                      万元长期负债                       万元
  流动负债


8、项目实施方案

报价人应提交完整的施工组织方案,编制时应包含施工总体部署、施工方法、技术措施、进度计划及保证措施等,并应对深化设计进度、质量等作出明确承诺。
附表一:拟投入本项目的主要施工设备表

设备名称数量  型号  备注
…… 

 

附表二:劳动力计划表                                          单位:人

项目管理机构的人员组成表(含现场人员)
序号姓名年龄职务岗位证或注册证 联系方式
……    

  

附表三:进度计划
1.应征人应递交施工进度网络图或施工进度表,说明按征集文件要求的计划工期进行施工的各个关键日期。
2.施工进度表可采用网络图或横道图表示。

 


9、其他补充材料

征集文件要求或应征人认为必要的其他资料。

第七章 工程量清单
(纸质版及电子版另册发放)


第八章 图纸
(纸质版及电子版另册发放)